—- Barn Conversion
Building Plot At Great Durnford, Salisbury
Guide price: £425,000
Overview
NOW SOLD
A Rare and Exciting Opportunity
This site offers prospective purchasers a unique opportunity to build a bespoke detached home in a stunning location. Currently, the property comprises a yard area and two modern steel-framed buildings. One of the buildings, which has planning consent, is a fully enclosed grain store with sliding doors facing the road. Please note that, as a condition of the planning permission, the second building must be removed before occupation and is not included in the sale.
The site benefits from an existing access point and a large concrete apron running the full length of the front of the building.
Key Features:
- Beautifully situated in open countryside
- Located in a popular village
- Set within 1.90 acres of gardens and paddocks
- Adjoining open farmland
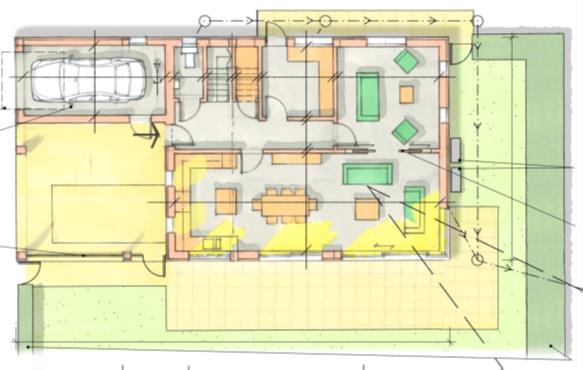
The Proposed Dwelling
Designed by the respected local architects, The Relph Ross Partnership, the proposed dwelling offers a unique contemporary home spread over two floors. The thoughtfully designed accommodation comprises:
Ground Floor:
- Covered cut-away area leading to entrance hall
- Spacious kitchen, dining, and living room with doors opening onto the garden
- Snug
- Utility room and cloakroom
- Integrated garage
First Floor:
- Master bedroom with en-suite and dressing room
- Bedroom 2 with en-suite
- Two further double bedrooms
- Family bathroom
- Eaves storage
THE GROUNDS
The house will be approached over a sweeping driveway leading to a large parking area. The planning consent provides for a garden and patio area which will lie to the north of the dwelling allowing a purchaser the opportunity to landscape and plant to their specific requirements. As a whole the size of the plot of land amounts to 1.90 acres. The land has been used for arable cropping in recent years but a purchaser would have the opportunity to reseed this to grass to create a paddock alongside the house. The soil type is a shallow lime-rich soil over chalk which is freely draining and capable of outwintering livestock and horses.
VIEWINGS
Viewings are strictly by appointment through the selling agents, Symonds & Sampson LLP, on 01722 334323.
AGENT’S NOTE
In accordance with the Estate Agents Act 1979 we confirm that the vendors are a family member of an employee of Symonds and Sampson LLP.
OVERAGE
In the event of planning permission being granted for any additional residential dwelling(s) overage will be payable at a rate of 20% on the uplift in value for a term of 20 years.
SERVICES
New service connections for water and electricity will need to be established by the purchaser to service the dwelling.
Location
The barn is situated in an elevated yet sheltered position on a quiet country lane on the outskirts of the desirable and much
sought after village of Great Durnford. The cathedral city of Salisbury lies just 8 miles to the south whilst the small town of Amesbury is just 2 miles north. Salisbury offers a comprehensive range of shopping, cultural and leisure facilities with a number of well regarded schools in the area in both the private and public sectors. The area is famed for its walking, cycling and riding including routes around the popular Woodford Valley.
The A303 is close by at Amesbury linking to the M3 motorway and the nearest mainline railway stations are at Salisbury and Grateley both of which offer frequent services to London Waterloo.
Great Durnford, Great Durnford,Salisbury, SP4 6AZ, Great Durnford, Salisbury.
What3words ///warthog.scrambles.buzzards
Site Plan

Resources
With our new Development Appraisal tool, you can now estimate potential profit, calculate build costs, and more. It’s the perfect way to explore the financial potential of any self-build project.
Planning Status
Planning permission was granted by Wiltshire Council for the demolition of the existing building and the conversion of one building to create a detached dwelling (Use Class C3), hard and soft landscaping and associated works on 1st December 2023. The planning application reference number is PL/2023/08703.
Floor Plans & Elevations

Mortgage Calculator
Premium Plots has teamed up with Mayflower Mortgage, a self-build mortgage specialist, to provide you with a free instant estimate of what you could borrow for a self-build, barn conversion, or custom-build mortgage.
See how you could finance this £425,000 plot with our mortgage calculator below.
Services
Water: Ask Agent
Electric: Ask Agent
Drainage: Ask Agent
Gas: Ask Agent
Broadband: Ask Agent










