—- Self Build
Building Plot, Nash Lane, Yeovil, Somerset
Guide price: £285,000
Overview
A generous building plot extending to approximately 0.3 acres (0.125 ha), with full planning permission (Ref: 24/00120/REM) for the construction of a substantial detached home alongside a detached garage block and office.
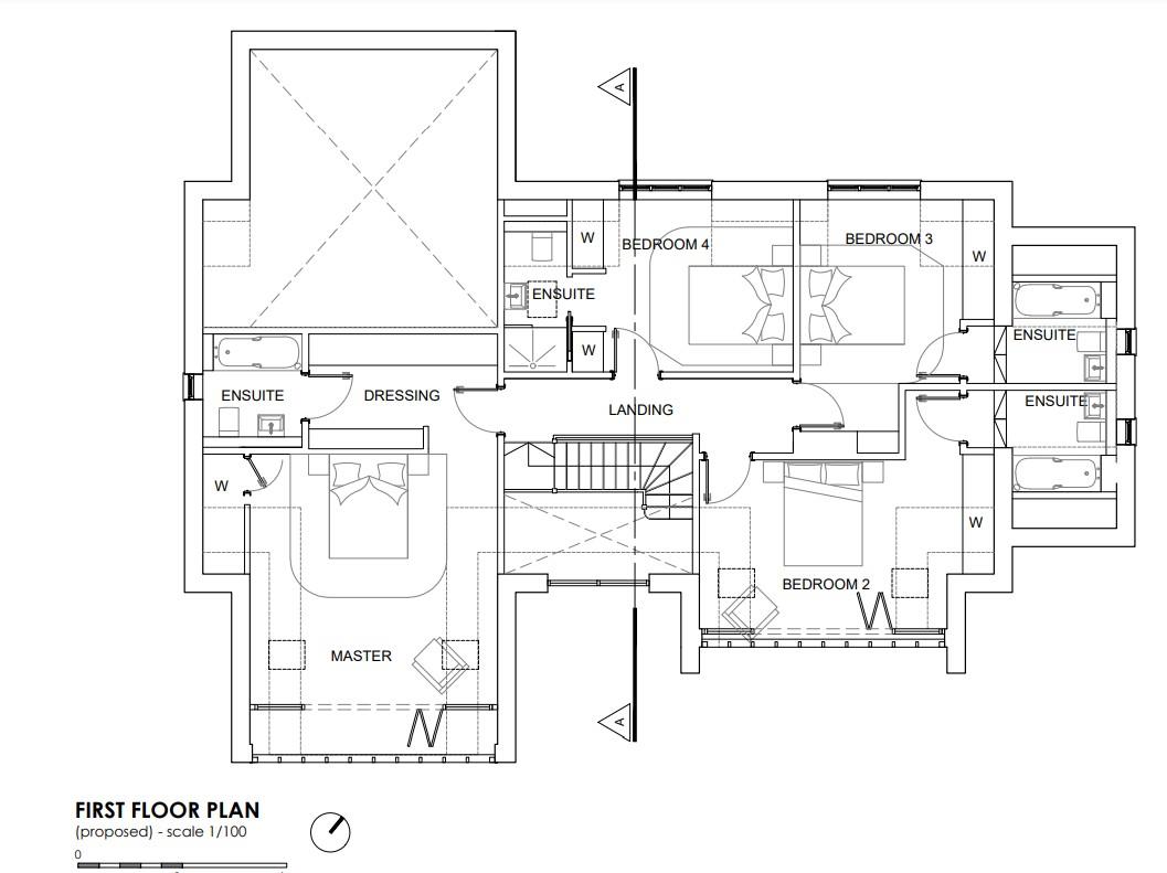
The approved plans allow for an impressive 4,203 sq. ft (390 sqm) residence, designed to offer spacious and well-appointed accommodation, including:
- Four double bedrooms, all with en-suite facilities
- Welcoming hallway, cloakroom, and utility room
- Generous sitting room and dining area
- Large open-plan kitchen/family room
- Additional playroom and separate office
- Detached garage block with office space
Situated in a desirable location, this plot presents a rare opportunity to create a stunning bespoke home.
Location
Nash Lane is situated in a quiet backwater to the western side of Yeovil and is in the parish of East Coker providing plenty of walks around country lanes and bridleways. Local convenience stores are close at hand on West Coker Road and the petrol station at White post which also hosts a Marks & Spencer’s satellite "Simply Food" store!
The town has an excellent range of shopping, business and leisure amenities; the home is also well-positioned for both local primary and secondary schools. There are excellent road links close by as Yeovil is positioned on the A303 and A37 corridor. Yeovil also benefits from mainline rail links and is within easy motoring distance of the country town (Taunton) and the coast.
Site Plan

Resources
With our new Development Appraisal tool, you can now estimate potential profit, calculate build costs, and more. It’s the perfect way to explore the financial potential of any self-build project.
Planning Status
Full planning permission has been granted.
Local Authority: Somerset Council
Planning Application Reference: 24/00120/REM
Floor Plans & Elevations


Mortgage Calculator
Premium Plots has teamed up with Mayflower Mortgage, a self-build mortgage specialist, to provide you with a free instant estimate of what you could borrow for a self-build, barn conversion, or custom-build mortgage.
See how you could finance this £285,000 plot with our mortgage calculator below.
Services
Water: Ask Agent
Electric: Ask Agent
Drainage: Ask Agent
Gas: Ask Agent
Broadband: Ask Agent







