—- Self Build
Plot 7 South Mead, West Camel, Yeovil
Guide price: £195,000
Overview
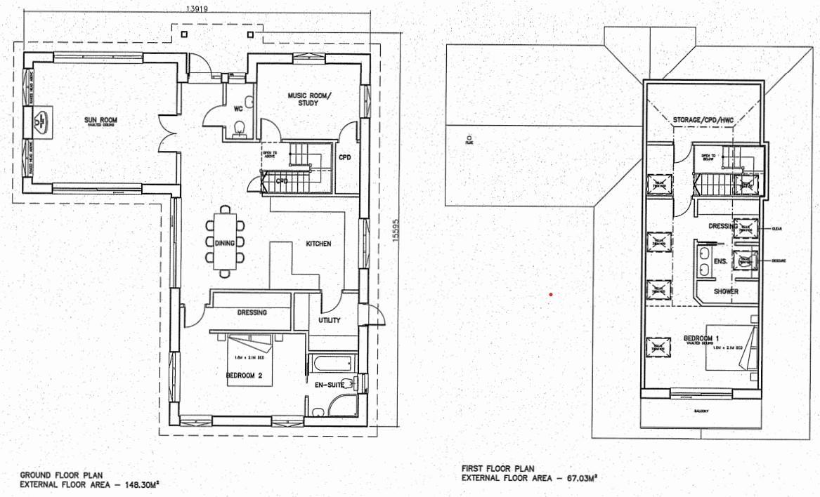
A residential building plot extending to 0.25 acre in total with FULL PLANNING PERMISSION to build a detached two-storey dwelling of a Gross External area of 2,318 square feet (215.33 square metres PLUS an additional garage building with store room above a further 820 square feet/76.25 square metres. The building plot is ready to progress to the building stage, with all the phosphate credit allocation already paid for by the current owner. Electricity, mains drainage and BT ducting are on site, with the water mains being close by and the initial entrance in place.
Location
The site occupies a quiet plot of 0.25 acres on the southern outskirts of West Camel, being 6 miles northeast of the town centre of Yeovil. The market town of Sherborne lies approximately 7 miles distant to south-east. West Camel has a small range of amenities including All Saints Church, a Public House (The Walnut Tree), playing fields and a community centre (The Davis Hall). The neighbouring village of Queen Camel lies approximately 2 miles distant to the east and benefits from a range of facilities and amenities including (but not limited to): St Barnabas Parish Church, Countess Gytha Primary School, Queen Camel Memorial Hall, The Mildmay Arms, and Queen Camel Medical Centre.
Site Plan


Resources
With our new Development Appraisal tool, you can now estimate potential profit, calculate build costs, and more. It’s the perfect way to explore the financial potential of any self-build project.
Planning Status
FULL PLANNING PERMISSION for the erection of a detached, two-storey home. Planning
Reference Number: 24/00666/FUL.
Mortgage Calculator
Premium Plots has teamed up with Mayflower Mortgage, a self-build mortgage specialist, to provide you with a free instant estimate of what you could borrow for a self-build, barn conversion, or custom-build mortgage.
See how you could finance this £195,000 plot with our mortgage calculator below.
Services
Water: Ask Agent
Electric: Ask Agent
Drainage: Ask Agent
Gas: Ask Agent
Broadband: Ask Agent





